Attico in vendita

Genova, Piazza Lido di Pegli - Pegli
€ 399.000
Prezzo aggiornato
5 locali 5 locali
125 Mq 125 Mq
1 bagno 1 bagno

Attico in vendita

Genova, Piazza Lido di Pegli - Pegli

Descrizione annuncio

Piazza Lido di Pegli

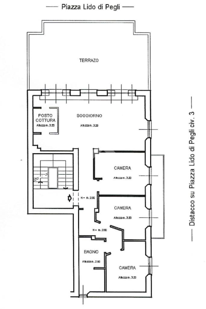
Nel cuore della piazza, proponiamo in vendita appartamento luminoso di 125 mq, situato all’ultimo piano di un palazzo dotato di ascensore. L'immobile è ben diviso tra zona giorno e zona notte ed è così composto: ingresso, doppio soggiorno con cucina a vista 3 camere da letto e 1 bagno, spazi ben distribuiti e facili da vivere.

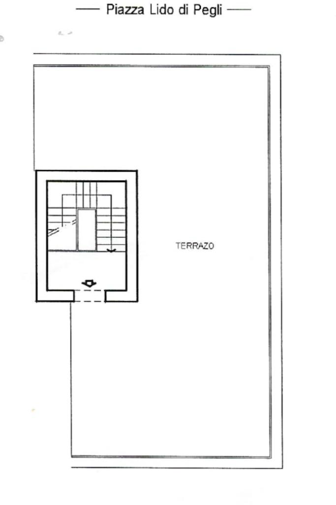
Sono presenti due terrazzi di proprietà: uno al piano, collegato direttamente alla zona giorno, ideale per pranzi all’aperto; l’altro è sovrastante, raggiungibile dal vano scala condominiale, perfetto per godersi momenti di relax o organizzare cene all’aperto.

L'appartamento dispone anche di una cantina.

Il riscaldamento è termoautonomo.

La posizione è comoda e pratica: è servita da bar, farmacia, ristorante e fermate dell’autobus della linea principale. Nelle vicinanze si trovano anche un benzinaio e un ufficio postale, mentre il centro resta facilmente raggiungibile pur essendo defilato dal traffico più intenso.

Soluzione interessante per chi cerca un attico con spazi esterni privati e tutti i principali servizi sotto casa.

Mostra tutto

Nelle vicinanze

Trasporto pubblico Trasporto pubblico
Pegli Lido / Capolinea
Pegli Lido / Capolinea
20 m
Trasporto pubblico
50 m
stazione di Genova Pegli
stazione di Genova Pegli
1,1 Km
stazione di Genova Pra
stazione di Genova Pra
1,1 Km
Ricariche auto elettriche Ricariche auto elettriche
Genova Via Pegli | EnelX
180 m
Stazione Genova Pra' | EnelX
1,1 Km
Genova Cordanieri | EnelX
1,3 Km
Genova Pra' 161 | EnelX
2,1 Km
Scuole Scuole
scuola elementare emanuelli
90 m
Scuola Primaria Paritaria “S. M. ad Nives”
310 m
Istituto Paritario Santa Maria Ad Nives
410 m
Scuola Primaria Ada Negri
620 m
Liceo Mazzini
1,1 Km
Farmacia Farmacia
Farmacia Bocchiotti
50 m
Farmacia Pescetto
700 m
Farmacia Negrotto
990 m
Parafarmacia Dottor Marchisio
1,0 Km
Farmacia Internazionale
1,1 Km
Ospedali Ospedali
Palazzo della Salute - Villa De Mari - ASL 3
2,6 Km
Supermercati Supermercati
EKOM
370 m
Tempofosco materiali edili
590 m
Supergulliver
750 m
Basko
770 m
COOP
1,2 Km
Negozi Negozi
Negozi
760 m
Cornaglia
810 m
Rocco
1,3 Km
Da-O-Frae
1,4 Km
Panificio Di Cara
1,4 Km
Bar Bar
Il Risveglio 77
310 m
Tabarca Night Club
670 m
Rombo Nord American Bar
770 m
Bar Gelateria La Pegliese
890 m
Bar Pasticceria Amleto
970 m
Ristoranti Ristoranti
Ristorante Teresa
0 m
Trattoria Nanni
350 m
Ristorante La Vetta
350 m
Ristorante da Costel
370 m
Ristorante Pizzeria A Pignatta
560 m
Mostra tutto

Caratteristiche

Rif.:
61096079
Piano:
4 di 4 con ascensore (Piano alto)
Balconi:
1
Terrazzi:
2
Camere da letto:
3
Arredamento:
Assente
Mostra tutto
Prezzo Prezzo
€ 399.000
Rata mutuo Rata mutuo
€ 1.828 / mese
Spese annue Spese annue
€ 1.000
Proponi il tuo prezzoProponi il tuo prezzo

Classe Energetica

Questo immobile è esente da classe energetica
Anno di costruzione:
1960
Riscaldamento:
Autonomo
Tipo impianto:
A radiatori
Tipo alimentazione:
Metano

Prezzo ridotto di €1 (3%%)

Ti interessa visionare l'immobile?

Fissa un appuntamento  Fissa un appuntamento

Richiedi informazioni

* Questi campi sono obbligatori

Calcola il tuo mutuo

Semplice e senza impegno
Anticipo

( % )
Mutuo

( % )

pochi semplici passi

inserisci i tuoi dati
Questionario completato
Grazie per aver richiesto un appuntamento senza impegno con un nostro Consulente del Credito e Assicurativo.

Hai inserito correttamente tutti i dati necessari e a breve riceverai una e-mail con un link da convalidare per inviare i tuoi dati.
Affiliato
Studio Pegli Sas
P.zza Porticciolo, 15R 16156 Genova (GE)
P.zza Porticciolo, 15R 16156 Genova (GE)
Zona: Genova Pegli 2 Zona Lungomare
Mostra su mappa
Orari: Da Lunedì a Venerdì 8.30-12.30 , 15.00 -20.00. Sabato 08.30 - 12.30 , 15.00 - 17.30
Affiliato
Studio Pegli Sas
P.zza Porticciolo, 15R 16156 Genova (GE)

2025 Tecnocasa Franchising S.p.A. - P. IVA 08365160152 - Via Monte Bianco 60/A 20089 Rozzano (MI). Ogni agenzia ha un proprio titolare ed è autonoma. Privacy policy | Policy utilizzo | Cookie policy