Trilocale in vendita

Genova, Via Luigi Rizzo - Pegli
€ 138.000
3 locali 3 locali
85 Mq 85 Mq
1 bagno 1 bagno

Trilocale in vendita

Genova, Via Luigi Rizzo - Pegli

Descrizione annuncio

Via Luigi Rizzo

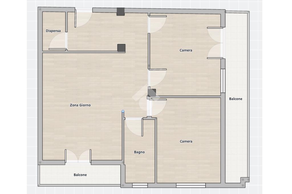
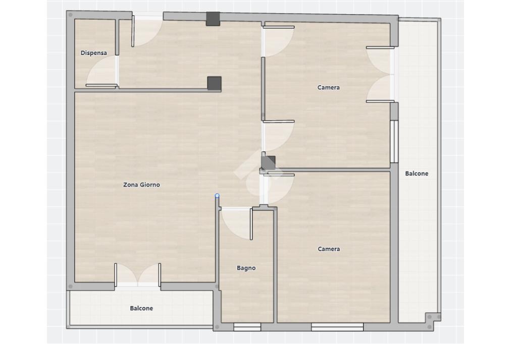
Proponiamo in vendita un appartamento al primo piano di una palazzina in zona semicentrale servita da un ascensore.

L'immobile è composto da: ingresso, open space con cucina e soggiorno, due camere da letto, bagno, dispensa comoda come ripostiglio e due balconi che rendono gli ambienti luminosi.

Grazie alla sua esposizione sud-est tutti gli ambienti godono di un'ottima illuminazione

Il riscaldamento è centralizzato.


Sono stati avviati alcuni lavori di ristrutturazione, in particolare per quanto riguarda l’impianto elettrico, ma sono da ultimare le rifiniture.

L'immobile è situato in una zona comoda a tutti i servizi (scuole, negozi, trasporti pubblici).

Mostra tutto

Nelle vicinanze

Trasporto pubblico Trasporto pubblico
Rizzo 2 / Salgari
Rizzo 2 / Salgari
40 m
Rizzo 1 / Salgari
Rizzo 1 / Salgari
60 m
stazione di Genova Pegli
stazione di Genova Pegli
650 m
stazione di Genova Pra
stazione di Genova Pra
1,6 Km
Ricariche auto elettriche Ricariche auto elettriche
Genova Via Pegli | EnelX
790 m
Stazione Genova Pra' | EnelX
1,6 Km
Genova Cordanieri | EnelX
1,7 Km
Genova Pra' 161 | EnelX
2,6 Km
Scuole Scuole
Scuola Primaria Ada Negri
230 m
Istituto Paritario Santa Maria Ad Nives
350 m
Liceo Mazzini
490 m
Scuola secondaria di primo grado Galeazzo Alessi
540 m
scuola elementare emanuelli
580 m
Farmacia Farmacia
Farmacia Pescetto
150 m
Parafarmacia Dottor Marchisio
600 m
Farmacia Negrotto
640 m
Farmacia Internazionale
650 m
Farmacia Bocchiotti
690 m
Supermercati Supermercati
Basko
230 m
EKOM
920 m
Coop
950 m
Tuodì Market
950 m
Tempofosco materiali edili
1,1 Km
Negozi Negozi
Negozi
180 m
Cornaglia
270 m
Da-O-Frae
830 m
Panificio Di Cara
930 m
Rocco
1,8 Km
Bar Bar
Tabarca Night Club
460 m
Le Palme american bar
490 m
Rombo Nord American Bar
510 m
Il Risveglio 77
550 m
Bar
600 m
Ristoranti Ristoranti
Ristorante La Vetta
290 m
Ristorante Antica via Venti
320 m
Miro
370 m
Ristorante Il Porticciuolo
460 m
Ristorante alla tavola di Malqù
470 m
Mostra tutto

Caratteristiche

Rif.:
61106699
Piano:
1 di 5 con ascensore (Piano basso)
Balconi:
2
Camere da letto:
2
Arredamento:
Assente
Condizionamento:
Assente
Mostra tutto
Prezzo Prezzo
€ 138.000
Rata mutuo Rata mutuo
€ 651 / mese
Spese annue Spese annue
€ 1.500
Proponi il tuo prezzoProponi il tuo prezzo
Immobile valutato con T·Valuta

Classe Energetica

G
G
G
G
G
G
G
G
G
EP globale non rinnovabile:
40271.00 kW h/m² anno
EP globale rinnovabile:
0.00 kW h/m² anno
EP invernale del fabbricato:
EP estiva del fabbricato:
Anno di costruzione:
1960
Riscaldamento:
Centralizzato
Tipo impianto:
A radiatori
Tipo alimentazione:
Metano

Ti interessa visionare l'immobile?

Fissa un appuntamento  Fissa un appuntamento

Richiedi informazioni

Clicca su Leggi per aprire l'informativa
* Questi campi sono obbligatori

Calcola il tuo mutuo

Semplice e senza impegno
Anticipo

( % )
Mutuo

( % )

pochi semplici passi

inserisci i tuoi dati
Questionario completato
Grazie per aver richiesto un appuntamento senza impegno con un nostro Consulente del Credito e Assicurativo.

Hai inserito correttamente tutti i dati necessari e a breve riceverai una e-mail con un link da convalidare per inviare i tuoi dati.
Affiliato
Studio Pegli Sas
P.zza Porticciolo, 15R 16156 Genova (GE)
P.zza Porticciolo, 15R 16156 Genova (GE)
Zona: Genova Pegli 2 Zona Lungomare
Mostra su mappa
Orari: Da Lunedì a Venerdì 8.30-12.30 , 15.00 -20.00. Sabato 08.30 - 12.30 , 15.00 - 17.30
Affiliato
Studio Pegli Sas
P.zza Porticciolo, 15R 16156 Genova (GE)

2025 Tecnocasa Franchising S.p.A. - P. IVA 08365160152 - Via Monte Bianco 60/A 20089 Rozzano (MI). Ogni agenzia ha un proprio titolare ed è autonoma. Privacy policy | Policy utilizzo | Cookie policy